Objektart
Adresse
Objektdaten
Informationen
Ausstattung
Details
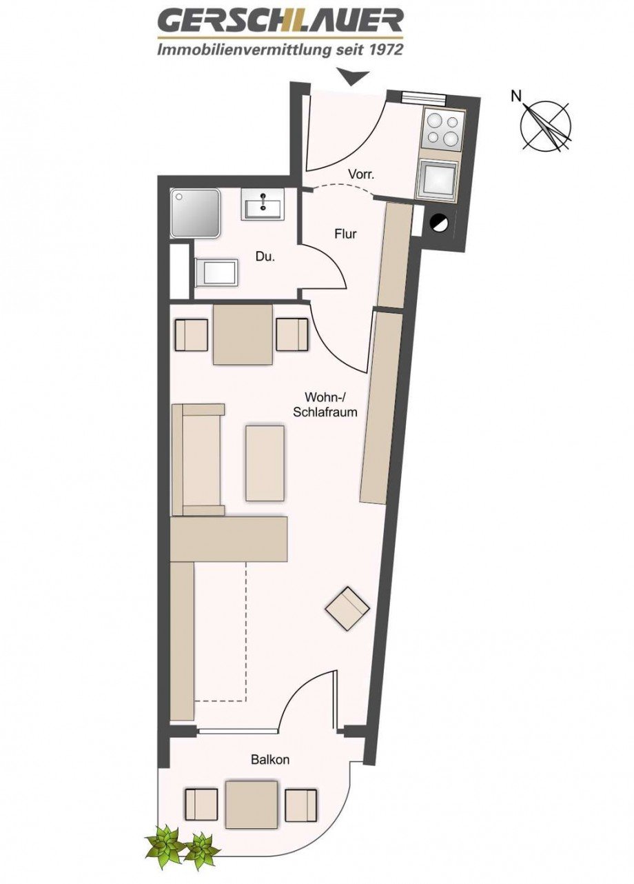
Diese gepflegte Etagenwohnung im 1. Obergeschoss eines ansprechenden Mehrfamilienhauses überzeugt durch ihre kompakte Raumaufteilung und die attraktive Lage in München. Mit einer Wohnfläche von ca. 27 m² eignet sich die Wohnung ideal als Kapitalanlage oder für Personen, die eine zentrale Stadtwohnung schätzen.
Das Herzstück der Wohnung bildet das helle Wohn- und Schlafzimmer. Die vorhandene Einbauküche ist praktisch integriert und bietet alles, was man für den Alltag benötigt.
Die Küchenzeile ist durch eine satinierte Glaswand stilvoll vom Flur abgetrennt und verfügt über ein kleines Fenster zum Laubengang. Zwischen Flur und Wohnbereich befindet sich eine hochwertige Venezianische Glastüre. Der sonnige Südwest-Balkon bietet einen schönen Blick in den ruhigen Dantepark und lädt zum Verweilen ein.
Im gesamten Apartment (mit Ausnahme der Nasszelle) ist Fertigparkett verlegt. Hinweis: Es sind Wasserflecken im Bereich vor der Terrassentür und vor der Spüle vorhanden.
Das Bad ist mit WC und Dusche ausgestattet.
Der Zugang zur Wohnung gestaltet sich bequem über den Aufzug. Unten am Eingang ist eine Rampe errichtet, sodass die Wohnung barrierefrei ist.
Ein gemeinschaftlicher Fahrradabstellplatz sowie eine zentrale Waschküche stehen den Bewohnern zur Verfügung. Zudem gehört ein abschließbares Speicherabteil im Dachgeschoss zur Wohnung.
Es gibt kein privates Kellerabteil und keinen Tiefgaragenstellplatz.
Seit dem Einzug des Mieters am 01.10.2023 wurde keine Mieterhöhung vorgenommen. Im Rahmen des Einzugs wurden die Elektrogeräte, die Spüle, der Kühlschrank sowie die Arbeitsplatte erneuert.
Die Wohnung ist derzeit vermietet, was sie besonders interessant für Kapitalanleger macht. Die monatliche Hausgeldzahlung beträgt 163 EUR.
- Aufzug
- Einbauküche mit Fenster
- Speicherabteil im DG
- Fahrradabstellplatz
- Waschküche
- Südwestbalkon
- Barrierefrei
- Fertigparkett Boden
Die Wohnung liegt an der Dachauer Straße im gefragten Stadtteil Neuhausen-Nymphenburg. Von hier aus sind Tram- und Busverbindungen bequem fußläufig erreichbar, sodass die Münchner Innenstadt schnell und unkompliziert angebunden ist. In der direkten Umgebung befinden sich zahlreiche Einkaufsmöglichkeiten, Restaurants, Cafés und Einrichtungen des täglichen Bedarfs. Auch kulturelle Angebote wie Theater sowie Naherholungsmöglichkeiten im Stadtteil sorgen für eine hohe Lebensqualität. Neuhausen-Nymphenburg zählt zu den beliebtesten Wohngegenden Münchens und verbindet urbanes Flair mit einem angenehmen Wohnumfeld.
Energieausweis (Verbrauchsausweis)
113 kWh / (m²*a) Energieverbrauchskennwert
113 kWh / (m²*a) Energieverbrauchskennwert
113 kWh / (m²*a) Energieverbrauchskennwert
Weitere Informationen
| Wesentlicher Energieträger | Gas |
| Energieausweis Ausstelldatum | 2018-04-25 |
| Energieausweis gültig bis | 24.04.2028 |
| Energieausweis Jahrgang | ab dem 1.5.2014 |
| Energieausweis Werteklasse | D |
| Energieausweis Baujahr | 1986 |
| Energieausweis Gebäudeart | Wohngebäude |
| Heizung | Zentralheizung |
| Befeuerung | Gas |
Ich bin damit einverstanden, dass mir Karten von Google angezeigt werden. Es gelten die Datenschutzbedingungen von Google (https://policies.google.com/privacy).
Ich bin einverstanden
