Objektart
Adresse
Objektdaten
Informationen
Ausstattung
Details
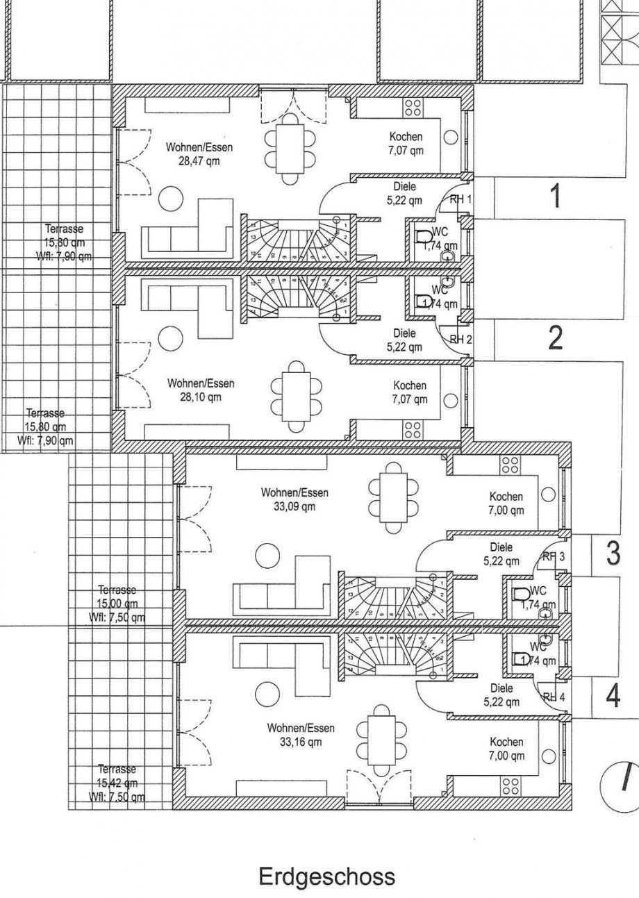
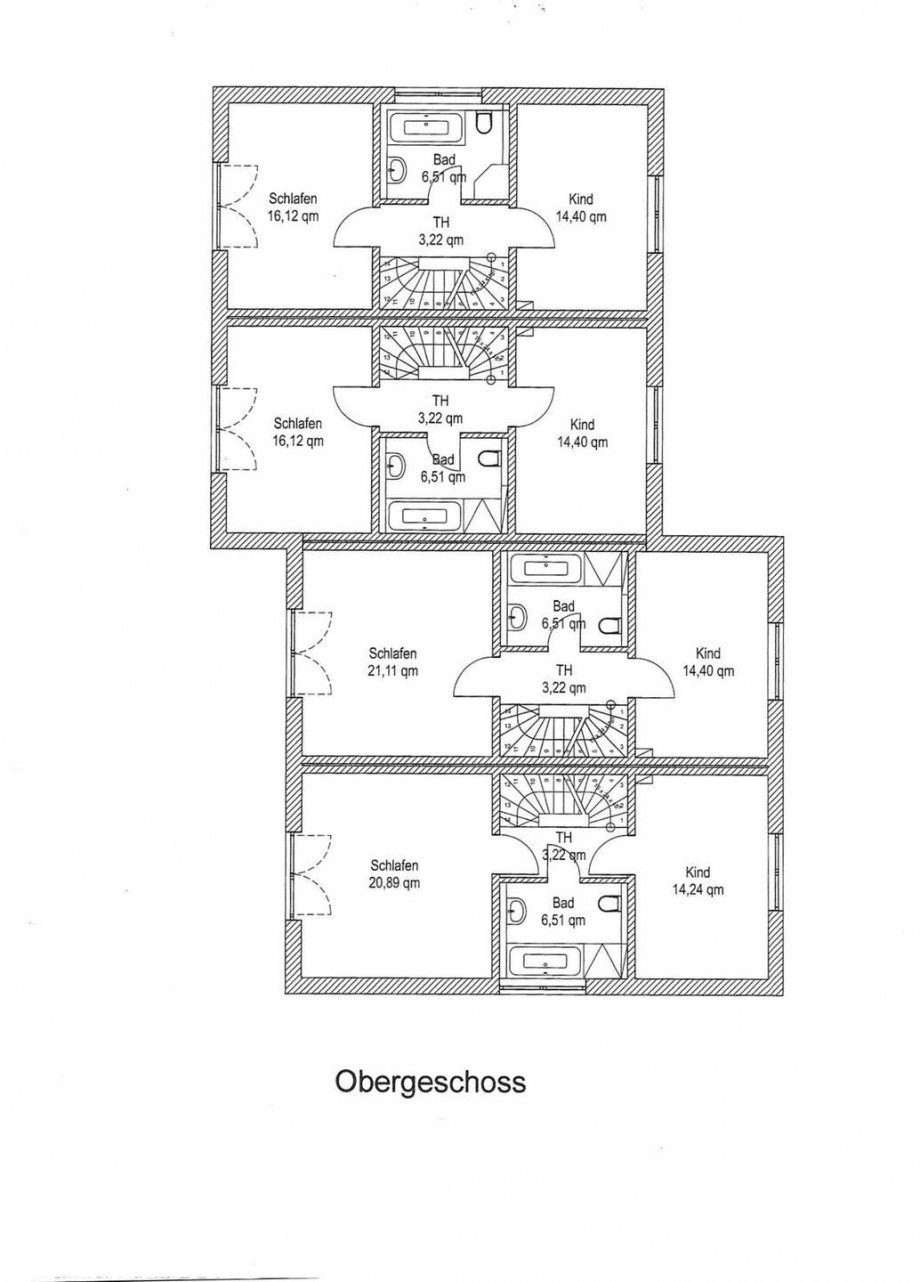
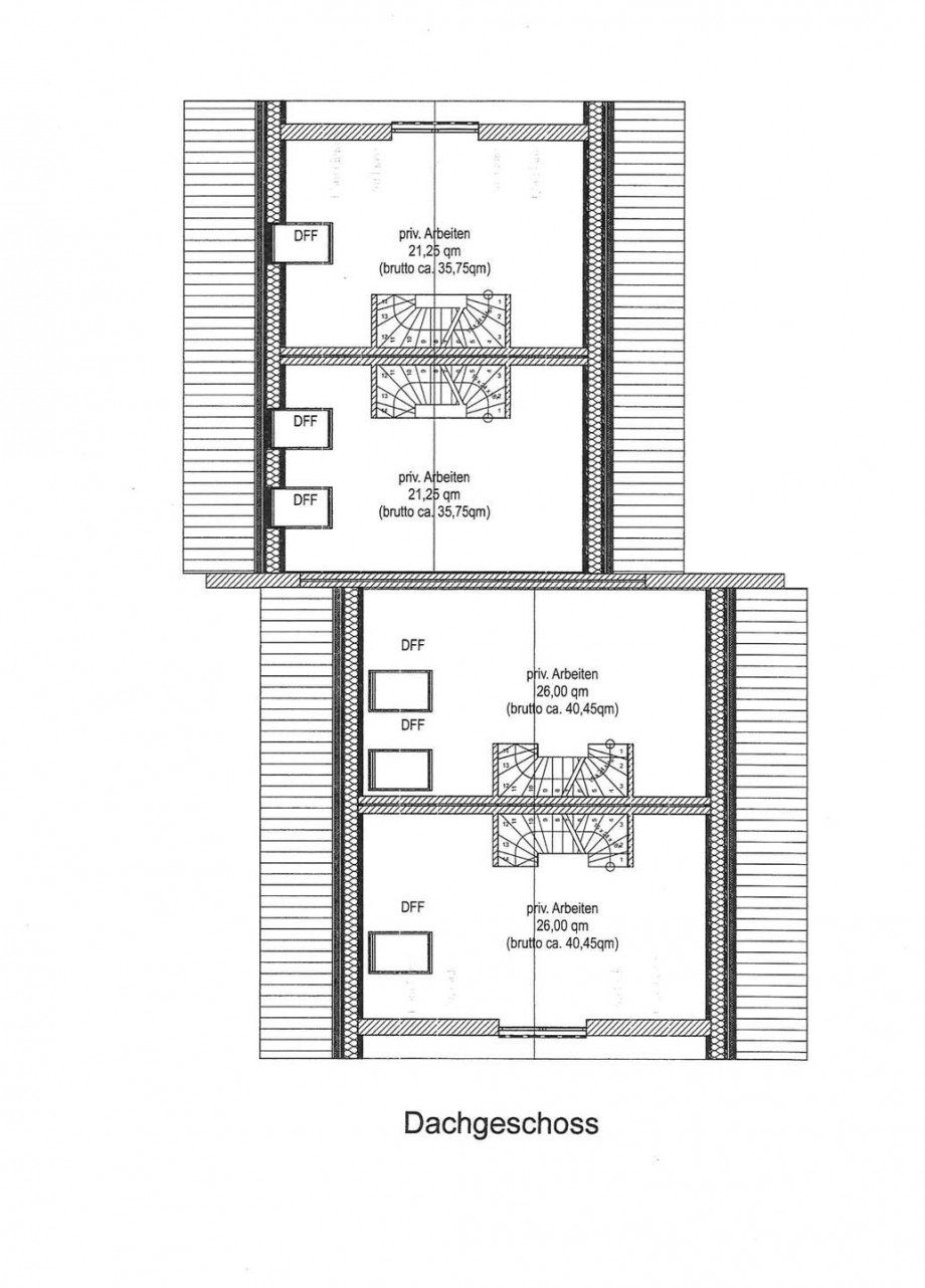
Das Reiheneckhaus ist das erste von insgesamt vier Reihenhäusern. In Westausrichtung gelegen und mit zwei Gärten ist es ideal für Menschen mit einem "grünen Daumen" und Gartenfreunde. Durch die ideale Südwestausrichtung sind alle 4 Häuser sehr hell und die Gärten, bzw. die Terrassen immer sonnig. Das Haus verfügt zudem über ein großes Fenster im Dachfirst und zusätzlich ist das Bad mit einem großen Fenster versehen. Der Grundriss ist modern und praktisch, eine offene Küche (keine Einbauküche) und ein Abstellraum im Erdgeschoss sind genauso vorhanden wie ein beheizter Hobbyraum und ein komfortables Studiozimmer mit großen Dachfenstern. Die Garage hat einen direkten Gartenzugang. Die vier Immobilien sind im Versatz gebaut und bieten den Charakter von Doppelhaushälften. Die Nachbarbebauung ist alt eingewachsen, familiär, mit niedriger Bebauung.
Die Ausstattung wurde hell und freundlich gestaltet, so sind die Erdgeschosse mit hellbeigen Cotto-Fliesen ausgelegt. Die Vinyl-Parkettböden sind ebenfalls hellbraun und die Bäder sind mit großen, weißen Fliesen ausgelegt. Die Böden der Bäder in den Eckhäusern sind moccafarben, sonst beige. Für die Mülltonnen wird ein gemeinsames Müllhäuschen errichtet.
Im alten Ortskern und somit östlich der S-Bahn gelegen, genießen Sie hier schon die Landluft, fahren aber andererseits über die Balanstraße oder die A8 respektive die A995 in nur 10 Minuten in die City. Die S-Bahn-Station ist, genauso wie Kindergarten oder Kita, fußläufig gut erreichbar.
Es besteht eine Räum- und Streupflicht für den Gemeinschaftsweg und den öffentlichen Teil des Gehweges vor den Garagen.
Provisionsfrei für Mieter.
Energieausweis (Bedarfsausweis)
39,42 kWh / (m²*a) Endenergiebedarf
39,42 kWh / (m²*a) Endenergiebedarf
39,42 kWh / (m²*a) Endenergiebedarf
Weitere Informationen
| Wesentlicher Energieträger | Gas |
| Energieausweis Ausstelldatum | 2018-05-06 |
| Energieausweis gültig bis | 06.05.2028 |
| Energieausweis Jahrgang | ab dem 1.5.2014 |
| Energieausweis Werteklasse | A |
| Energieausweis Baujahr | 2018 |
| Energieausweis Gebäudeart | Wohngebäude |
| Befeuerung | Gas |
Ich bin damit einverstanden, dass mir Karten von Google angezeigt werden. Es gelten die Datenschutzbedingungen von Google (https://policies.google.com/privacy).
Ich bin einverstanden
