Objektart
Adresse
Objektdaten
Informationen
Ausstattung
Details
Willkommen in Ihrem zukünftigen Zuhause! Dieses charmante Reihenmittelhaus aus dem Jahr 1962 befindet sich in einer ruhigen, familienfreundlichen Lage und bietet auf ca. 111 m² Wohnfläche und ca. 200 m² Grundstücksfläche reichlich Platz zur freien Entfaltung.
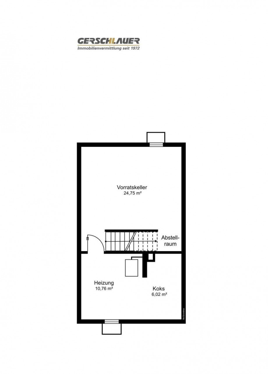
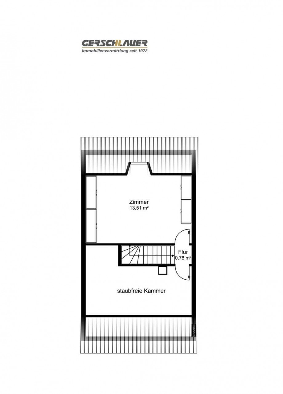
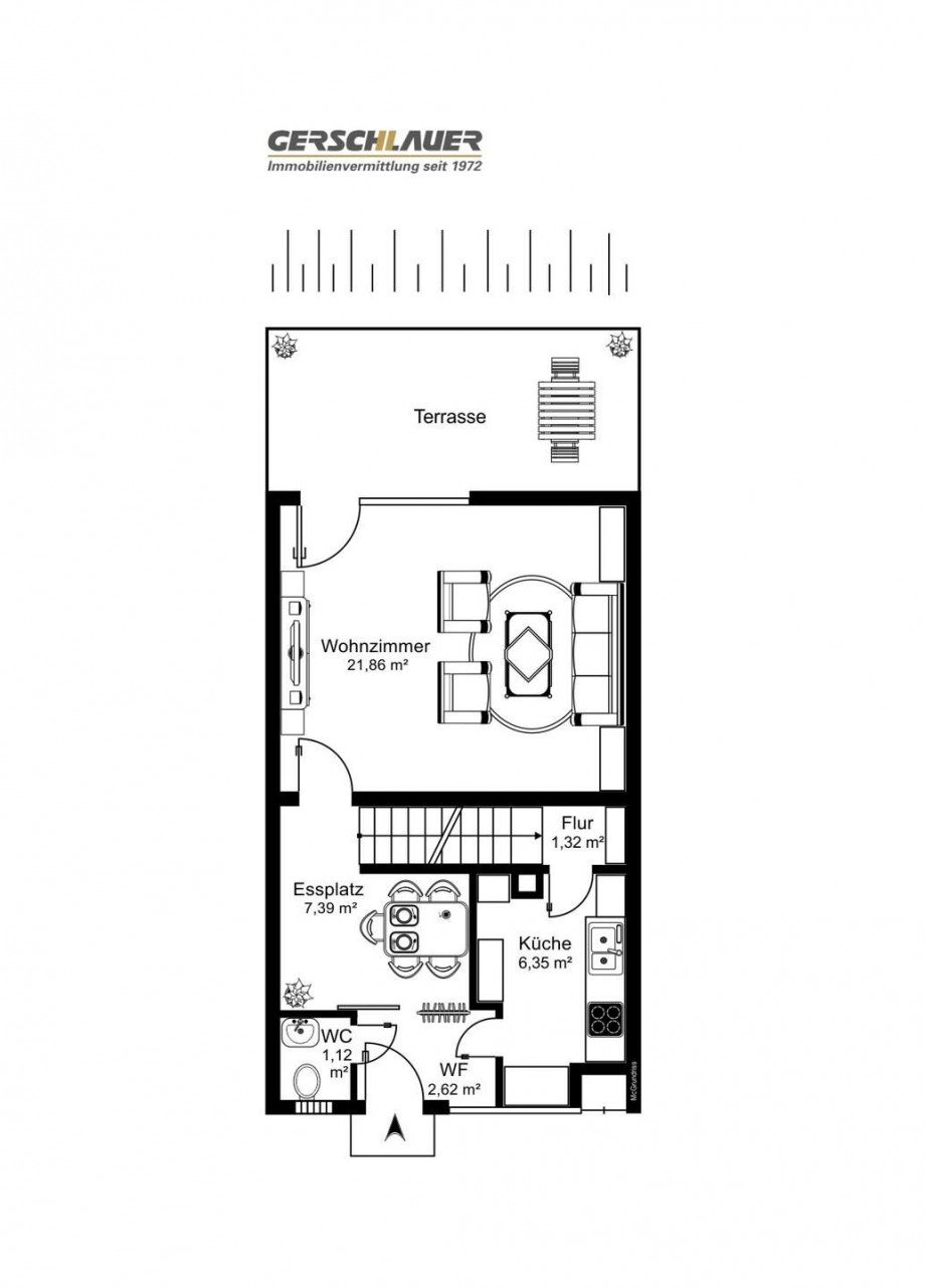
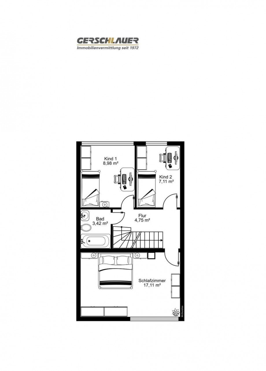
Das Haus erstreckt sich über vier Etagen - vom Kellergeschoss bis hinauf ins ausgebaute Dachgeschoss - und bietet insgesamt 6 Zimmer, die flexibel nutzbar sind: Ob als Kinderzimmer, Homeoffice oder Gästezimmer - hier findet jedes Familienmitglied seinen Rückzugsort.
Herzstück des Hauses ist die großzügige, sonnige Terrasse, die direkt an den ruhigen Garten angrenzt - ideal für entspannte Nachmittage im Grünen oder gesellige Abende mit der Familie oder Freunden. Eine elektrische Markise sorgt dabei für angenehmen Schatten an warmen Tagen. Ein echtes Highlight: Von der Garage aus gelangen Sie direkt in den Garten - praktisch und komfortabel!
Die Einbauküche im Erdgeschoss ist funktional ausgestattet und bietet Raum für individuelle Gestaltungsideen. Mit etwas Liebe zum Detail und handwerklichem Geschick lässt sich hier ein modernes, offenes Wohnkonzept realisieren.
Das Haus befindet sich in einem renovierungsbedürftigen Zustand - bietet aber genau dadurch die perfekte Gelegenheit, eigene Wohnträume umzusetzen und dabei zugleich energetische Anforderungen im Blick zu behalten. Die gesetzlichen Vorgaben gemäß Gebäudeenergiegesetz bieten dabei den entsprechenden Rahmen für eine zukunftsorientierte Modernisierung, insbesondere im Bereich der Heiztechnik und Dämmung.
Beachten Sie den KFW Kredit 308_
Förderkredit ab 0,01 %
effektivem Jahreszins
für den Kauf einer bestehenden Wohnimmobilie, die Sie nach dem Erwerb energieeffizient sanieren
Kredithöchstbetrag von 100.000 bis 150.000 Euro
für Familien mit Kindern und Allein erziehende, Förderung hängt vom Einkommen ab.
Lesen Sie mehr unter:
https://www.kfw.de/kfw.de.html
- 4 Etagen (EG, 1. OG, DG, KG)
- renovierungsbedürftig (Bäder, Böden, manche Fenster, Heizung, usw.)
- sonnige, große Terrasse mit angrenzendem Garten
- elektrische Markise
- Einzelgarage mit direktem Zugang in den Garten
Willkommen in Moosach, einem der grünsten und familienfreundlichsten Stadtteile Münchens. Wer Wert auf ein ruhiges, gepflegtes Wohnumfeld legt, dabei aber nicht auf die Nähe zur Innenstadt verzichten möchte, ist hier genau richtig.
Das Wohnviertel rund um die Immobilie vereint das Beste aus zwei Welten: eine ruhige Anliegerstraße mit wenig Verkehr und einem sicherem Straßenbild - und gleichzeitig bietet es eine hervorragende Anbindung an die städtische Infrastruktur. Die Nachbarschaft ist geprägt von charmanten Einfamilienhäusern, kleinen Mehrparteienhäusern und viel Grün - ein Ort, an dem Kinder unbeschwert aufwachsen und Familien wirklich ankommen können.
Kindertagesstätten, Grundschulen und weiterführende Schulen befinden sich in direkter Umgebung und sind bequem zu Fuß, mit dem Fahrrad oder den öffentlichen Verkehrsmitteln erreichbar. Die Verkehrsanbindung ist insgesamt ausgezeichnet: Bus, U-Bahn und S-Bahn bringen Sie zügig in alle Münchner Stadtteile. Und auch mit dem Auto profitieren Sie von kurzen Wegen - ganz gleich, ob zur Arbeit, zum Einkaufen oder ins Umland.
Alles für den täglichen Bedarf finden Sie in direkter Nähe: Supermärkte, Bäckereien, Apotheken und kleine Läden des täglichen Lebens - vieles davon sogar fußläufig. Für größere Besorgungen oder einen entspannten Einkaufsbummel bieten die nahegelegenen Einkaufszentren und Fachgeschäfte zahlreiche Möglichkeiten.
Besonders Familien schätzen Moosach wegen seiner zahlreichen Parks, Spielplätze und Grünflächen, die zu Spaziergängen, Spielnachmittagen oder einfach zum Durchatmen einladen. Wer gerne draußen ist, findet hier schnell seine Lieblingsorte - und mit dem eigenen Garten direkt am Haus beginnt das Familienleben schon vor der Haustür.
Die geschützte Grundstückssituation mit Garten und Terrasse ist ein echtes Highlight für Kinder, Hobbygärtner und alle, die Wert auf Erholung im Freien legen. Ob Sandkasten, Kräuterbeet oder Grillabend - hier lässt sich der Alltag wunderbar entschleunigen.
Nicht zuletzt macht die gewachsene Nachbarschaft mit ihrem guten Miteinander und dem Gefühl von Sicherheit diese Lage besonders attraktiv. Die Kombination aus ruhiger Wohnatmosphäre, umfassender Infrastruktur, Bildungseinrichtungen unmittelbarer Nähe und vielfältigen Freizeitmöglichkeiten macht diese Immobilie zu einer Adresse, an der sich Familien rundum wohlfühlen können.
Die im Exposé angegebene Käuferprovision ist der Verkäuferprovision äquivalent.
Die Garage ist mit 30.000,- EUR (und die Einbauküche mit 1.000,- EUR) im Kaufpreis enthalten. Dadurch verringert sich der Quadratmeterpreis um den entsprechenden Faktor.
Alle Angaben des Exposés beruhen auf Aussage und Angaben des Verkäufers.
Zusätzlich zum Kaufpreis können Kosten für Heizung, Wartung, Sanierung oder Modernisierung im Rahmen der neuen GEG-Anforderungen entstehen.
Je nach Gebäudetyp und Baujahr können gesetzliche Pflicht- bzw. Fördermaßnahmen relevant sein. Der Käufer sollte sich über mögliche Fördermittel informieren.
Modernisierungsbedarf: Das GEG 2024 setzt Mindestvorgaben an Brennwert, Dämmung, Luftdichtheit und Anlagentechnik.
Energieausweis (Bedarfsausweis)
228,61 kWh / (m²*a) Endenergiebedarf
228,61 kWh / (m²*a) Endenergiebedarf
228,61 kWh / (m²*a) Endenergiebedarf
Weitere Informationen
| Wesentlicher Energieträger | Öl |
| Energieausweis Ausstelldatum | 2025-10-27 |
| Energieausweis gültig bis | 26.10.2035 |
| Energieausweis Jahrgang | ab dem 1.5.2014 |
| Energieausweis Werteklasse | G |
| Energieausweis Baujahr | 1962 |
| Energieausweis Gebäudeart | Wohngebäude |
| Befeuerung | Öl |
Ich bin damit einverstanden, dass mir Karten von Google angezeigt werden. Es gelten die Datenschutzbedingungen von Google (https://policies.google.com/privacy).
Ich bin einverstanden
