Objektart
Adresse
Objektdaten
Informationen
Ausstattung
Details
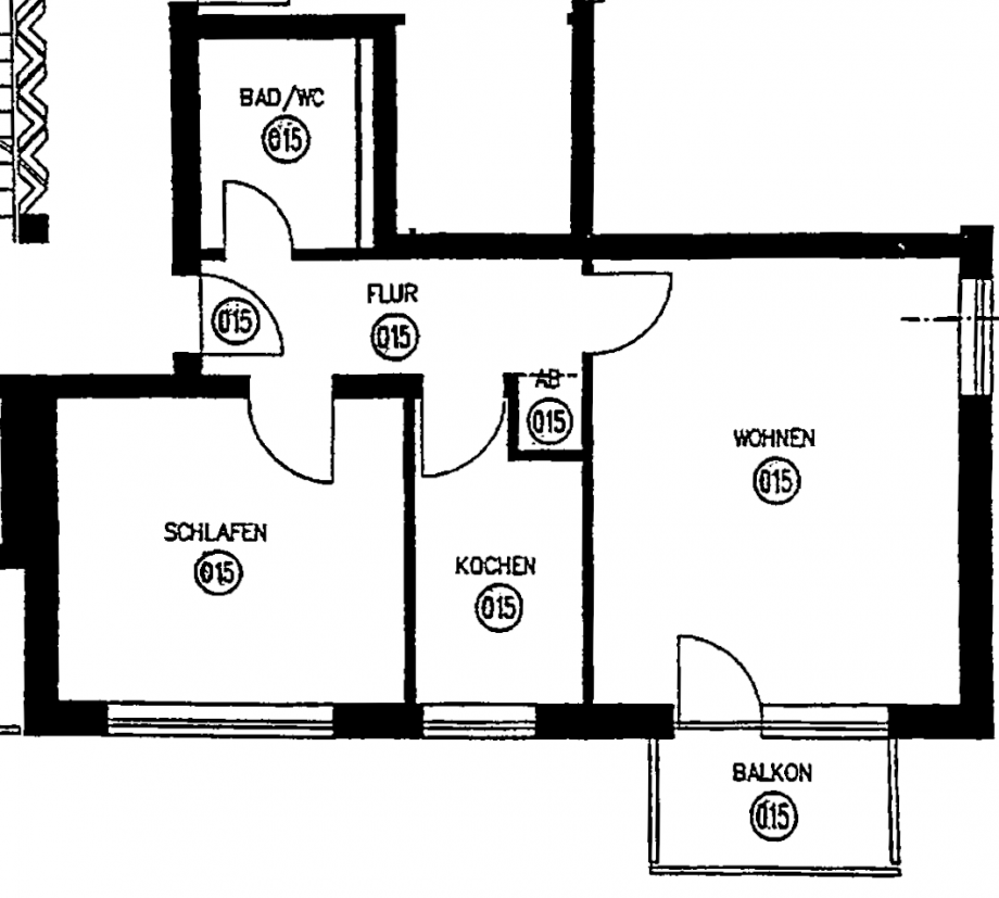
Diese geschmackvolle 2-Zimmer-Wohnung im zweiten Obergeschoss eines gepflegten Mehrfamilienhauses mit fünf Etagen überzeugt durch ihre hochwertige Ausstattung und die frisch abgeschlossene Modernisierung aus dem Jahr 2026. Auf einer Wohnfläche von 57 m² erwartet Sie ein durchdachter Grundriss mit einem großzügigen Wohnbereich sowie einem separaten Schlafzimmer, das Ihnen die gewünschte Privatsphäre bietet.
Die gehobene Ausstattung zeigt sich unter anderem im edlen Parkettboden, der den Wohnräumen eine warme und zeitlose Eleganz verleiht. Das moderne Badezimmer wurde im Zuge der Sanierung vollständig erneuert und entspricht aktuellen Qualitätsstandards.
Das Haus verfügt über einen komfortablen Aufzug, sodass die Wohnung bequem und barrierefrei erreichbar ist. Ein eigener Kellerraum bietet zusätzlichen Stauraum für Fahrräder, Koffer oder saisonales Equipment. Die Beheizung erfolgt über eine zuverlässige Gasheizung.
Als Erstbezug nach Sanierung profitieren Sie von einem frischen, modernen Wohnambiente in einem Haus, das von Grund auf neu gestaltet wurde.
- Parkettböden und neue Fliesen
- KEINE Einbauküche
- neue Elektroleitungen
- saniertes Badezimmer
Die Immobilie befindet sich in äußerst ruhiger und nahezu versteckter Lage am Rande einer kleinen, autofreien Bungalow-Siedlung - ein echtes Refugium für alle, die Wert auf Privatsphäre und Entspannung legen.
Gleichzeitig profitieren Sie von einer hervorragenden Anbindung: Die nahegelegene Wasserburger Landstraße zählt zu den wichtigsten Verkehrsachsen und bietet eine schnelle Verbindung in die Münchner Innenstadt sowie zum Autobahnanschluss Haar/Trudering (A99).
Alle Geschäfte des täglichen Bedarfs, Banken, Postfilialen sowie weitere Einrichtungen sind bequem zu Fuß oder mit dem Fahrrad erreichbar. Auch die Anbindung an den öffentlichen Nahverkehr mit S-Bahn und Bus ist ebenso gewährleistet wie die Nähe zu Grundschule, Kindergarten und vielfältigen Sportangeboten.
Der Stadtteil Trudering/Riem zählt zu den begehrtesten Wohnlagen Münchens und überzeugt durch seine gelungene Kombination aus urbaner Infrastruktur und naturnahem Wohnen.
Zahlreiche Freizeit- und Erholungsmöglichkeiten befinden sich in unmittelbarer Umgebung, darunter der Landschaftspark der Messestadt Riem mit Badesee und Rodelhügel. Die Messe München erreichen Sie in wenigen Fahrminuten.
Energieausweis (Verbrauchsausweis)
114,10 kWh / (m²*a) Energieverbrauchskennwert
114,10 kWh / (m²*a) Energieverbrauchskennwert
114,10 kWh / (m²*a) Energieverbrauchskennwert
Weitere Informationen
| Wesentlicher Energieträger | Gas |
| Energieausweis Ausstelldatum | 2018-10-02 |
| Energieausweis gültig bis | 02.10.2028 |
| Energieausweis Jahrgang | ab dem 1.5.2014 |
| Energieverbrauch für Warmwasser | enthalten |
| Energieausweis Werteklasse | D |
| Energieausweis Baujahr | 1965 |
| Energieausweis Gebäudeart | Wohngebäude |
| Befeuerung | Gas |
Ich bin damit einverstanden, dass mir Karten von Google angezeigt werden. Es gelten die Datenschutzbedingungen von Google (https://policies.google.com/privacy).
Ich bin einverstanden
