Repräsentative Gewerbeeinheit mit funktionalem Grundriss in Oberhaching
Objektart
Adresse
Objektdaten
Informationen
Ausstattung
Details
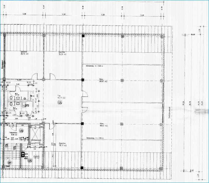
Diese vielseitig nutzbare Gewerbefläche befindet sich im Dachgeschoss eines Gewerbegebäudes in Oberhaching und umfasst eine Gesamtfläche von ca. 386 m². Sie eignet sich hervorragend für die Nutzung als Büro, Praxis, Dienstleistungsbetrieb oder auch für produktionsnahe Tätigkeiten.
Der Standort im Gewerbegebiet Oberhaching zählt zu den etablierten Wirtschaftsstandorten im südlichen Münchner Raum und überzeugt durch eine sehr gute Infrastruktur sowie eine schnelle Erreichbarkeit der Landeshauptstadt. Die Raumaufteilung ist variabel gestaltet und ermöglicht durch den Rückbau oder die Anpassung von Trennwänden eine individuelle Gestaltung entsprechend den jeweiligen Anforderungen.
- Glasfaseranschluss
- Klimatisierung der gesamten Etage (Klimaanlagen vom Vormieter abzulösen)
- Netzwerkverkabelung
- Lastenaufzug (auch als Personenaufzug nutzbar mit bis zu 800 kg Tragkraft)
- Deckenbelastung bis 500 kg/m²
- Hydraulische Laderampe im Außenbereich
- Teeküche
- WCs für Damen und Herren getrennt
- Servervorbereitung
- Sonnenrollos
- Anbringung von Firmenlogo an der Geländezufahrt
Die Gewerbeimmobilie liegt in einem etablierten und gefragten Gewerbegebiet in Oberhaching im südlichen Münchner Umland. Der Standort überzeugt durch seine verkehrsgünstige Lage mit schneller Anbindung an die Autobahnen A8 und A995 sowie an das Münchner Stadtgebiet. Öffentliche Verkehrsmittel (S3, S20 und S27) in fußläufiger Entfernung, Einkaufsmöglichkeiten, Gastronomie und weitere Dienstleister befinden sich in der näheren Umgebung. Die Kombination aus ruhigem Arbeitsumfeld und hervorragender Erreichbarkeit macht diesen Standort besonders attraktiv für Unternehmen unterschiedlichster Branchen.
Ich bin damit einverstanden, dass mir Karten von Google angezeigt werden. Es gelten die Datenschutzbedingungen von Google (https://policies.google.com/privacy).
Ich bin einverstanden
